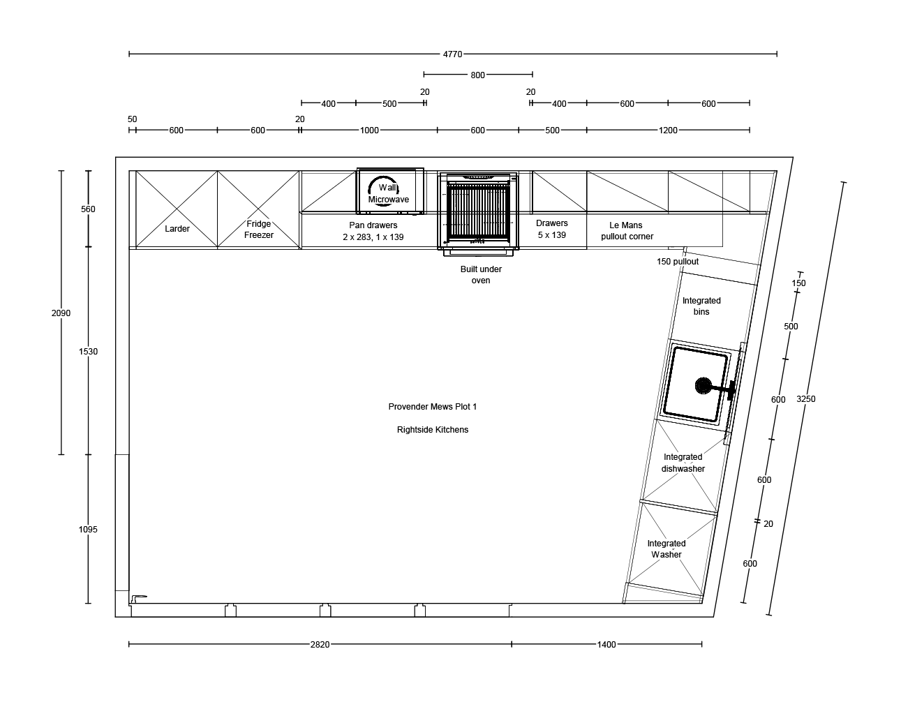
STEPHENSON CONSTRUCTION ––––
Design, supply & install nine bespoke kitchens and two utility rooms for a private development of nine mews houses in Hanwell, W7.
Stephenson Construction were looking for a quality kitchen installation, with a bespoke feel, to match the overall finish of the houses and the market the sales would be aimed at.
They didn't feel that high street brands could offer the wow factor they were looking for and so searched for a specialist bespoke kitchen company that could deliver.
In the tendering & negotiation process, Rightside proved to be competitive against high street brands – a relatively small cost uplift to achieve the bespoke feel for the kitchen they were looking for with a personalised and stress-free management.
CONCEPT
During the interactive concept phase Mark listened to our thoughts and ideas and took them on board, but equally was comfortable in saying ‘that wont work!’. The end results were kitchen designs that exceeded expectations.
DESIGN
Lots of communication throughout the whole project - I never was in any doubt as to progress, what was happening next.
BUILD
A few minor (and I mean minor) problems arose after the installation - Mark instantly put into place actions to remedy the situation - no quibbling, no argument, just got on with it.
Highly skilled, personable, approachable, knowledgable team all led to a flawless, high quality installation.
––– ANDY NEWMAN, CONSULTANT PROJECT MANAGER –––
––––– VIEW THE 360 TRANSFORMATION ––––